
Advanced Fluoropolymer Devices GmbH
Precision Manufacturing Meets Transfer Molding
Installation and Operating Manual
Strainer

PFA Lined Strainer
Purion9
This comprehensive manual provides detailed instructions for safe transport, installation, operation, and routine maintenance of your equipment.
Please review all sections carefully before proceeding. Keep this manual accessible for future reference.
Important Safety Notice
Carefully observe these operating instructions before transport, installation, operation, and maintenance!
Failure to follow proper procedures may result in equipment damage, personal injury, or voided warranty.
Manual Information
- Document Version: 1.0
- Last Updated: October 04, 2025
- Document Type: Installation and Operating Manual
- Language: English
Quick Reference Guide
📋 Before You Start
🚚 Transport Guidelines
⚙️ Installation Process
🔧 Operation Manual
🛠️ Maintenance Schedule
📞 Support Contact
Parameter | Value |
---|---|
Name | Purion9 |
Design norm | DIN/ISO | ANSI |
Size | DN 15–150 | NPS ½"-4" |
Flange dimensions | DIN 2501 (PN 16) | ASME B16.10 (Class 150-RF LP) |
Face to face dimensions | DIN EN 558-1 |
Strainer basket | Material: PTFE or PTFE-Carbon-Composite filter element Mesh: ETFE filter mesh size from 85 to 2000my (max. 150°C, for higher temperature, custom mesh provided up to 200°C) |
Lining | PFA, PFA/AS, PVDF |
Body | 1.0619 , 1.4308, 1.4408, A216WCB, CF-8, CF8-M |
Pressure | PN 16 |
Temperature range | -10°C up to +150°C, higher / lower temperatures on request |
Quality | Body 24bar, Dielectric strength test 20kV |
Certificates | EU Pressure Equipment Directive 2014/68/EU |

DIN Weight Specifications
Size DIN | Weight |
---|---|
DN 25 | 7 kg |
DN 50 | 18 kg |
DN 80 | 28 kg |
DN 100 | 80 kg |
ANSI Weight Specifications
Size ANSI | Weight |
---|---|
NPS 1" | 7 kg |
NPS 2" | 18 kg |
NPS 3" | 28 kg |
NPS 4" | 80 kg |
DIN Pipe Screws
Size | Screws | Tightening Torque [Nm] [Nm/lbs] |
---|---|---|
DN 25 | 4 x M12 | 10 |
DN 50 | 4 x M16 | 26 |
DN 80 | 8 x M16 | 25 |
DN 100 | 8 x M16 | 35 |
ANSI Pipe Screws
Size | Screws | Tightening Torque [Nm] [Nm/lbs] |
---|---|---|
NPS 1" | 4 x ½“ | 70/8 |
NPS 2" | 4 x ⅝“ | 220/15 |
NPS 3" | 4 x ⅝“ | 400/45 |
NPS 4" | 8 x ⅝“ | 310/35 |
DIN Body Screws
Size | Screws | Tightening Torque [Nm] [Nm/lbs] |
---|---|---|
DN 25 | 4 x M12 | 35/310 |
DN 50 | 4 x M16 | 45/398 |
DN 80 | 8 x M16 | 50/442 |
DN 100 | 8 x M16 | 60/531 |
ANSI Body Screws
Size | Screws | Tightening Torque [Nm] [Nm/lbs] |
---|---|---|
NPS 1" | 4 x M12 | 310/35 |
NPS 2" | 4 x M16 | 398/45 |
NPS 3" | 8 x M20 | 442/50 |
NPS 4" | 12 x M24 | 531 /80 |

P-T Diagram & Vacuum P-T for PFA / PFA Conductive Lined Strainer

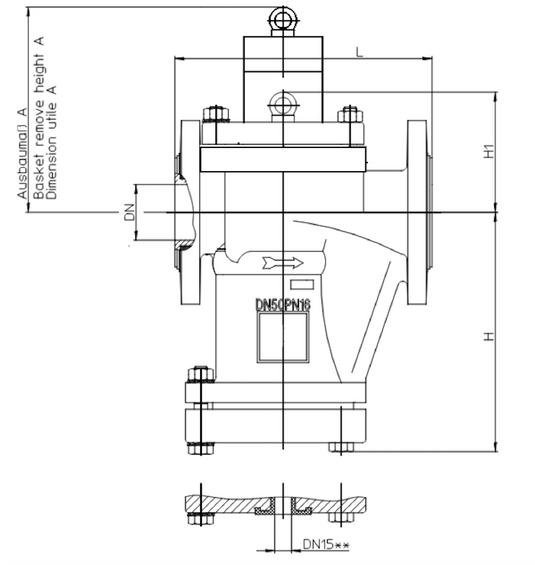
10. Dimensional Drawings
10.1 Dimensional Measurements DIN

Size | L | H | H1 | ød | øk | øD | Bolting | A | Weight |
---|---|---|---|---|---|---|---|---|---|
DN 25 | 160 mm | 175 mm | 110 mm | 68 mm | 85 mm | 115 mm | 4 x 14 (M12) | 270 mm | 7 kg |
DN 50 | 230 mm | 220 mm | 140 mm | 102 mm | 125 mm | 165 mm | 4 x 18 (M16) | 340 mm | 18 kg |
DN 80 | 310 mm | 320 mm | 150 mm | 138 mm | 160 mm | 200 mm | 8 x 18 (M16) | 460 mm | 28 kg |
DN 100 | 350 mm | 330 mm | 160 mm | 158 mm | 180 mm | 220 mm | 8 x 18 (M16) | 500 mm | 80 kg |
10.2 Dimensional Measurements ANSI

Size | L1 | H | H1 | ød | øk | øD | Bolting | A | Weight |
---|---|---|---|---|---|---|---|---|---|
NPS 1" | 160 mm | 175 mm | 110 mm | 50.8 mm | 79.4 mm | 108 mm | 4 x 15.9 | 270 mm | 7 kg |
NPS 2" | 230 mm | 220 mm | 140 mm | 92.1 mm | 121 mm | 152.4 mm | 4 x 19 | 340 mm | 18 kg |
NPS 3" | 310 mm | 320 mm | 150 mm | 127 mm | 152.4 mm | 190.5 mm | 4 x 19 | 460 mm | 28 kg |
NPS 4" | 350 mm | 330 mm | 160 mm | 157.2 mm | 190 mm | 228.6 mm | 8 x 19 | 500 mm | 80 kg |
11. Sectional Drawing

Pos. | Item | Material |
---|---|---|
99 | PFA Virgin | |
100 | 1.0619 (A216 WCB) | |
106 | 1.0619 (A216 WCB) | |
107 | 1.0619 (A216 WCB) | |
109 | 1.0619 (A216 WCB) | |
115 | 1.0619 (A216 WCB) | |
216 | ETFE | |
217 | 1.0619 (A216 WCB) | |
219 | PTFE / PTFE Carbon Composite | |
220 | PTFE / PTFE Carbon Composite | |
218 | PTFE / PTFE Carbon Composite | |
222 | PTFE / PTFE Carbon Composite | |
234 | PTFE / PTFE Carbon Composite | |
407 | PTFE / PTFE Carbon Composite | |
522 | PTFE / PTFE Carbon Composite | |
900 | Stainless steel | |
901 | Stainless steel | |
902 | Stainless steel | |
920 | Stainless steel | |
936 | Stainless steel |